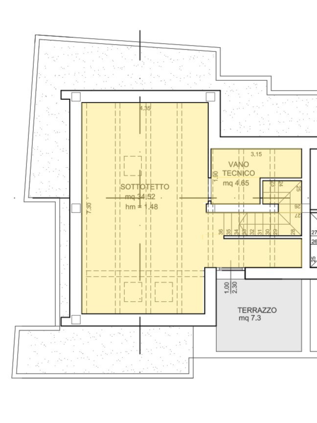
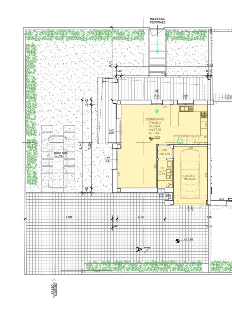
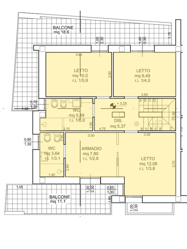
CESENA, a Case Finali adiacente alla valle di Rio Marano, si vende una villa bifamiliare in costruzione.
Il progetto di bifamiliare prevede la seguente soluzione disposta su più livelli: al piano terra una zona giorno di oltre 37 mq con cucina a vista e affaccio sul giardino privato, un bagno ospiti disimpegnato e l'autorimessa singola; al primo piano nella zona notte abbiamo tre camere da letto con doppi servizi e doppi balconi; al piano sottotetto vano tecnico e ulteriore vano di 34 mq da adibire a studio o sala hobbies con terrazzo. Soluzione moderna realizzata in edilizia tradizionale e copertura in legno a vista, indipendente, in zona tranquilla e servita. Interessante il giardino con posto auto e il doppio ingresso alla proprietà. Acquisto da privati con imposta di registro. Il prezzo è riferito allo stato grezzo, è disponibile il preventivo per il completamento dei lavori.
Per informazioni acasa_cesena : Andrea Placuzzi tel 328/8255174
NB le presenti informazioni non costituiscono elemento contrattuale
Balconi, Mansarda, Giardino di proprietà 280 mq, Predisposizione condizionatore
Classe A1
Prestazione energetica del fabbricato inverno estate

CESENA, a Case Finali adiacente alla valle di Rio Marano, si vende una villa bifamiliare in costruzione.
Il progetto di bifamiliare prevede la seguente soluzione disposta su più livelli: al piano terra una zona giorno di oltre 37 mq con cucina a vista e affaccio sul giardino privato, un bagno ospiti disimpegnato e l'autorimessa singola; al primo piano nella zona notte abbiamo tre camere da letto con doppi servizi e doppi balconi; al piano sottotetto vano tecnico e ulteriore vano di 34 mq da adibire a studio o sala hobbies con terrazzo. Soluzione moderna realizzata in edilizia tradizionale e copertura in legno a vista, indipendente, in zona tranquilla e servita. Interessante il giardino con posto auto e il doppio ingresso alla proprietà. Acquisto da privati con imposta di registro. Il prezzo è riferito allo stato grezzo, è disponibile il preventivo per il completamento dei lavori.
Per informazioni acasa_cesena : Andrea Placuzzi tel 328/8255174
NB le presenti informazioni non costituiscono elemento contrattuale
Riferimento: 1630
Tipologia: Villa bifamiliare
Comune: Cesena
Zona: Case Finali
Cucina: Cucina a vista
N. Bagni: 3
N. Camere: 3
Box: Singolo
Piano: Intero edificio di 3
Anno costruzione: 2025
Stato conservazione: Nuovo
Stato: Libero
Spese cond. annue €:
Riscaldamento: Autonomo
Balconi, Mansarda, Giardino di proprietà 280 mq, Predisposizione condizionatore
Efficienza energetica
Classe A1
Prestazione energetica del fabbricato inverno estate