CESENA Ruffio. Si vende un terreno edificabile di 5.000 mq per la nuova costruzione di una villa bifamiliare.
Le due unità immobiliari avranno una cubatura di 447 e 528 metri cubi a cui aggiungere i vani tecnici non conteggiabili. Tali volumi derivano dalla demolizione di due vecchi fabbricati colonici come previsto dalla attuale normativa del PUG.
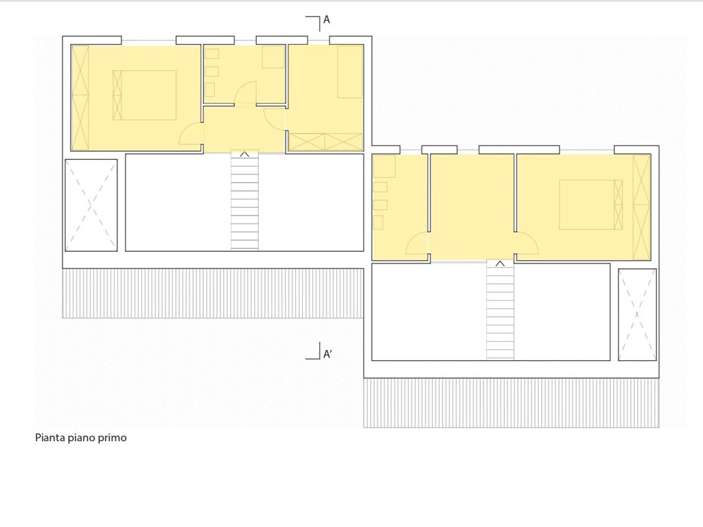
La proposta progettuale è puramente indicativa e non è stata sottoposta al parere preventivo del Comune di Cesena.
PLUS: posizione in direzione mare a breve distanza dalla città; nessun vincolo progettuale e costruttivo; terreno di 2.500 mq per ogni unità.
Per informazioni ACASA_CESENA : Andrea Placuzzi tel 328/8255174. Tutte le proposte su ACASA.INFO.
NB le presenti informazioni non costituiscono elemento contrattuale.
Non certificabile: non soggetto

CESENA Ruffio. Si vende un terreno edificabile di 5.000 mq per la nuova costruzione di una villa bifamiliare.
Le due unità immobiliari avranno una cubatura di 447 e 528 metri cubi a cui aggiungere i vani tecnici non conteggiabili. Tali volumi derivano dalla demolizione di due vecchi fabbricati colonici come previsto dalla attuale normativa del PUG.
La proposta progettuale è puramente indicativa e non è stata sottoposta al parere preventivo del Comune di Cesena.
PLUS: posizione in direzione mare a breve distanza dalla città; nessun vincolo progettuale e costruttivo; terreno di 2.500 mq per ogni unità.
Per informazioni ACASA_CESENA : Andrea Placuzzi tel 328/8255174. Tutte le proposte su ACASA.INFO.
NB le presenti informazioni non costituiscono elemento contrattuale.
Riferimento: 3014
Tipologia: Terreno Edificabile
Comune: Cesena
Zona:
Cucina:
N. Bagni:
N. Camere:
Box:
Piano:
Anno costruzione:
Stato conservazione:
Stato:
Spese cond. annue €:
Riscaldamento:
Efficienza energetica
Non certificabile: non soggetto