CESENA centro città. Vendiamo un ampio fabbricato terratetto allo stato grezzo interno, disposto su quattro livelli con predisposizione per ascensore, già ristrutturato in tutte le parti strutturali.
Attualmente progettato come importante abitazione unifamiliare con il garage, un giardino privato e la dependance per gli ospiti o il personale di servizio. Il fabbricato è attualmente privo di pareti divisorie interne, quindi è possibile modificarne la distribuzione degli ambienti e vista l'ampia superficie è possibile realizzare due unità abitative.
L'attuale progettazione prevede questa distribuzione :
Piano interrato con taverna, cantina, lavanderia/stireria, palestra, bagno, giardino con dependance (monolocale). Piano terra con ingresso e garage doppio.
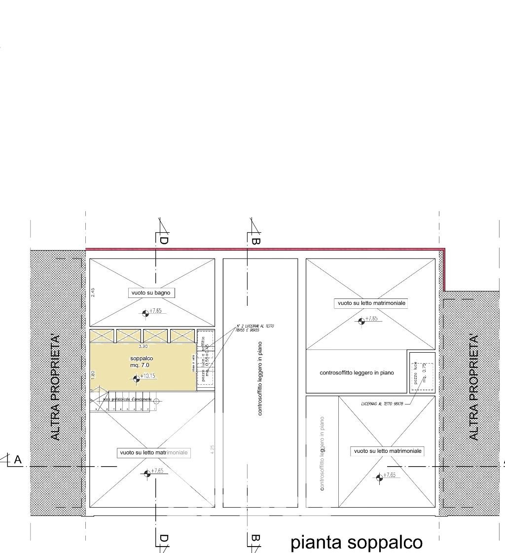
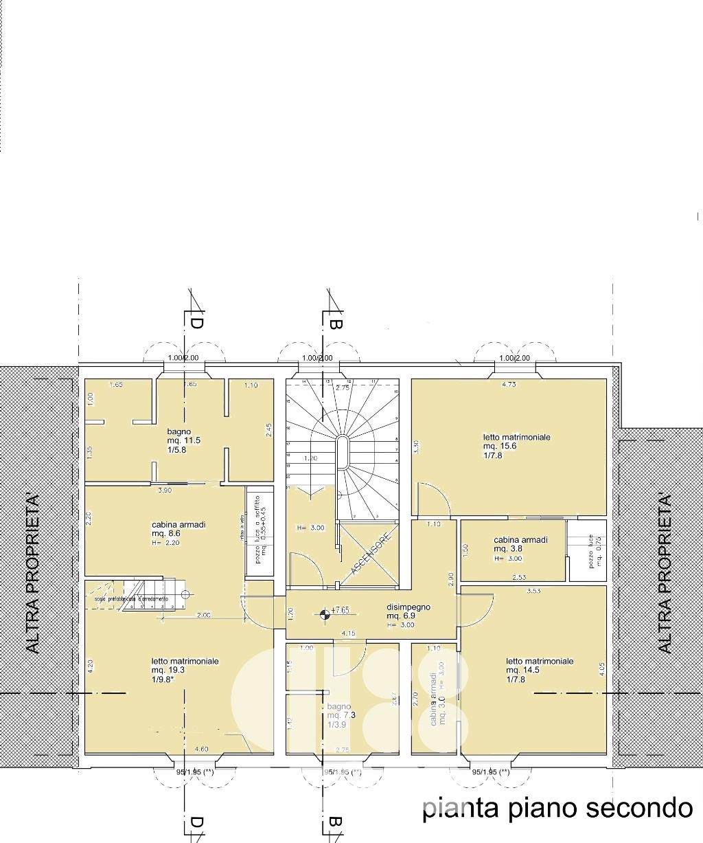
Primo piano con soggiorno, cucina /pranzo, dispensa, studio, terrazzo, bagno. Piano secondo con tre camere da letto matrimoniali con relative cabine armadio, due bagni. Piano soppalcato raggiungibile direttamente dalla camera da letto principale. Nel fabbricato è già stato realizzato il vano ascensore che servirà tutti i piani.
Per informazioni ACASA_Cesena -Via Marinelli 113- Andrea Placuzzi 328/8255174. Tutte le nostre proposte su : www.acasa.info
NB: le presenti informazioni non costituiscono elemento contrattuale.
Ascensore, Terrazzi 9 mq, Balconi 2 mq, Cantina, Giardino di proprietà 160 mq, Predisposizione condizionatore, Predisposizione allarme
Non certificabile: privo di impianto

CESENA centro città. Vendiamo un ampio fabbricato terratetto allo stato grezzo interno, disposto su quattro livelli con predisposizione per ascensore, già ristrutturato in tutte le parti strutturali.
Attualmente progettato come importante abitazione unifamiliare con il garage, un giardino privato e la dependance per gli ospiti o il personale di servizio. Il fabbricato è attualmente privo di pareti divisorie interne, quindi è possibile modificarne la distribuzione degli ambienti e vista l'ampia superficie è possibile realizzare due unità abitative.
L'attuale progettazione prevede questa distribuzione :
Piano interrato con taverna, cantina, lavanderia/stireria, palestra, bagno, giardino con dependance (monolocale). Piano terra con ingresso e garage doppio.
Primo piano con soggiorno, cucina /pranzo, dispensa, studio, terrazzo, bagno. Piano secondo con tre camere da letto matrimoniali con relative cabine armadio, due bagni. Piano soppalcato raggiungibile direttamente dalla camera da letto principale. Nel fabbricato è già stato realizzato il vano ascensore che servirà tutti i piani.
Per informazioni ACASA_Cesena -Via Marinelli 113- Andrea Placuzzi 328/8255174. Tutte le nostre proposte su : www.acasa.info
NB: le presenti informazioni non costituiscono elemento contrattuale.
Riferimento: 1805
Tipologia: Casa Indipendente
Comune: Cesena
Zona: Centro città
Cucina: Cucina abitabile
N. Bagni: 4
N. Camere: 3
Box: Doppio
Piano: Intero edificio di 4
Anno costruzione: in costruzione
Stato conservazione: Ristrutturato
Stato: In costruzione
Spese cond. annue €:
Riscaldamento: Autonomo
Ascensore, Terrazzi 9 mq, Balconi 2 mq, Cantina, Giardino di proprietà 160 mq, Predisposizione condizionatore, Predisposizione allarme
Efficienza energetica
Non certificabile: privo di impianto