CESENATICO - CENTRO STORICO
Nuovo cantiere che offre appartamenti moderni e luminosi, perfetti per ogni esigenza abitativa sia turistica che residenziale.
Ogni unità è progettata con passione e attenzione al dettaglio, per garantire comfort e qualità in ogni momento della tua vita.
Le caratteristiche principali di questo nuovo complesso immobiliare sono: design innovativo, finiture di qualità, ampi spazi esterni ed una posizione strategica.
12 unità disponili con diverse caratteristiche, tutte con posto auto e cantina.
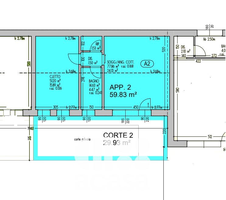
CASETTA 2 PT :
Casetta al piano terra con giardino - 2 locali - 72,76 mq
Graziosa casetta indipendente nella corte interna, composta da ingresso privato su corte di proprietà, soggiorno con cucina a vista, disimpegno, bagno, ripostiglio-lavanderia, camera da letto matrimoniale.
Cantina e possibilità di posto auto di proprietà.
Per informazioni ACASA_Cesenatico, Viale Roma 24. tel. 0547-1952930
Le presenti informazioni non costituiscono elemento contrattuale
Cantina 3 mq, Giardino di proprietà 29 mq, Giardino condominiale, Condizionatore, Predisposizione allarme
Classe A4
Prestazione energetica del fabbricato inverno estate

CESENATICO - CENTRO STORICO
Nuovo cantiere che offre appartamenti moderni e luminosi, perfetti per ogni esigenza abitativa sia turistica che residenziale.
Ogni unità è progettata con passione e attenzione al dettaglio, per garantire comfort e qualità in ogni momento della tua vita.
Le caratteristiche principali di questo nuovo complesso immobiliare sono: design innovativo, finiture di qualità, ampi spazi esterni ed una posizione strategica.
12 unità disponili con diverse caratteristiche, tutte con posto auto e cantina.
CASETTA 2 PT :
Casetta al piano terra con giardino - 2 locali - 72,76 mq
Graziosa casetta indipendente nella corte interna, composta da ingresso privato su corte di proprietà, soggiorno con cucina a vista, disimpegno, bagno, ripostiglio-lavanderia, camera da letto matrimoniale.
Cantina e possibilità di posto auto di proprietà.
Per informazioni ACASA_Cesenatico, Viale Roma 24. tel. 0547-1952930
Le presenti informazioni non costituiscono elemento contrattuale
Riferimento: 3782
Tipologia: Appartamento
Comune: Cesenatico
Zona: Centro Storico
Cucina: Cucina a vista
N. Bagni: 1
N. Camere: 1
Box: Posto auto scoperto
Piano: Terra di 1
Anno costruzione: 2027
Stato conservazione: Nuovo
Stato: In progetto
Spese cond. annue €:
Riscaldamento: Autonomo
Cantina 3 mq, Giardino di proprietà 29 mq, Giardino condominiale, Condizionatore, Predisposizione allarme
Efficienza energetica
Classe A4
Prestazione energetica del fabbricato inverno estate